00件
最近見た物件
00件
検討リスト
ふじみ野市の不動産|株式会社東武住販 > プレシス本川越











(※元利均等方式 金利5.00%まで ※返済年数5~50年まで入力できます)
(※ボーナスは年2回で計算しています。1000万円まで入力できます)
(※物件購入時、その他諸費用が発生する場合がございます)
| 所在地 | 埼玉県川越市松江町1丁目 | ||
|---|---|---|---|
| 交通 | |||
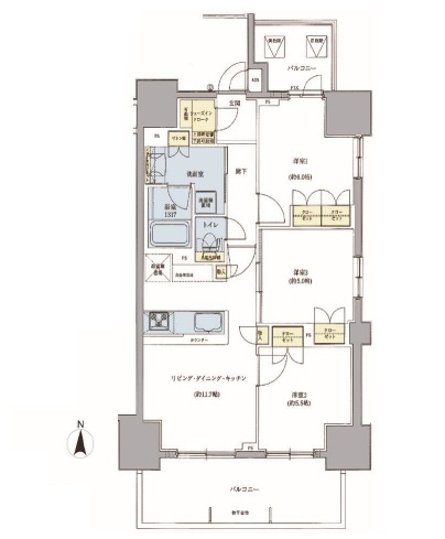
| 間取り/詳細 |
3LDK LDK 11.7帖 1室/洋室 5.5帖 1室/洋室 5.0帖 1室/洋室 6.0帖 1室 |
||
| 専有面積/バルコニー面積 | 65.00㎡/16.68㎡ | ルーフバルコニー面積/テラス面積/専用庭面積 | -/-/- |
| 価格 | 2,450万円 | ||
| 管理費 | 17,750円 | ||
| 修繕積立金 | 28,310円 | 修繕積立基金 | - |
| 権利金 | - | 駐車場/月額料金 | 空無/12,000円 空き状況要確認 |
| 土地の敷金/保証金 | -/- | 借地料/借地期間 | -/- |
| 土地権利 | 所有権 | 国土法届出要否 | 不要 |
| 用途地域 | 商業 | 地勢 | - |
| 種別/構造 | 中古マンション/鉄筋コンクリート | 向き | 南 |
| 築年月(築年数) | 2013年 10月 (築12年) | ||
| 所在階/階建 | 2階/13階建 | 棟総戸数/販売戸数 | 25戸/1戸 |
| 管理組合有無 | 有 | 管理形態 | 管理会社に全部委託 |
| 管理員の勤務形態 | 日勤 | 管理会社 | 伏見管理サービス(株) |
| 取引態様 | 仲介 | 現況 | 空家 |
| 引渡し | 相談 | 建築確認番号 | - |
| 物件番号 | 93234255 | 取引条件の有効期限 | 2026年02月22日 |
| 設備条件 |
|
||
| 備考 |
ペット飼育可(細則有) ※修繕積立金については2025年10月より30,730円に改定予定。 |
||
| 取扱会社 |
|
||
| QRコード |
このQRコードを読み取ることで、スマホでも物件情報を確認できます。 |
||
※地図上に表示される物件の位置は付近住所に所在することを表すものであり、実際の物件所在地とは異なる場合がございます。
プレシス本川越に関するこだわり条件から探す
川越市の町名から探す