00件
最近見た物件
00件
検討リスト
ふじみ野市の不動産|株式会社東武住販 > ふじみ野市南台 2期 全2棟 2号棟
JCBギフト券1万円分プレゼント!当社より本物件をご購入の方に!その他のサービスについては下記『担当者(スタッフ)のコメント』をご確認ください。











(※元利均等方式 金利5.00%まで ※返済年数5~50年まで入力できます)
(※ボーナスは年2回で計算しています。1000万円まで入力できます)
(※物件購入時、その他諸費用が発生する場合がございます)
| 所在地 | 埼玉県ふじみ野市南台1丁目 | ||
|---|---|---|---|
| 交通 | |||
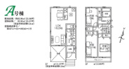
| 間取り/詳細 |
4LDK/ LDK 16.5帖 1室/洋室 7.3帖 1室/洋室 4.5帖 1室/洋室 5.8帖 1室/洋室 4.5帖 1室 |
建物面積(坪数) | 85.70㎡(25.92坪) |
| 価格 | 3,698万円 | ||
| 駐車場/月額料金 | 有(1台)/0円 | ||
| 土地の敷金/保証金 | -/- | 借地料/借地期間 | -/- |
| 土地権利 | 所有権 | 土地面積(坪数) | 81.08㎡(24.52坪) |
| 傾斜地部分面積 | - | 路地状敷地 | - |
| 私道負担面積/セットバック |
525.38㎡/無 私道負担割合 : 6/90 |
高圧線下面積 | - |
| 地目/地勢 | 宅地/- | 接道状況 | 角地(南東 公道 4.0m)(南西 公道 4.0m) |
| 建ぺい率/容積率 | 60%/160% | 用途地域 | 第二種中高層住居専用 |
| 都市計画 | 市街化区域 | 種別/構造 | 新築一戸建/木造 |
| 階建 | 2階建 | 築年月(築年数) | 2025年 5月 (新築) |
| 総区画数/販売区画数 | 2区画/1区画 | 向き | 南東 |
| 現況 | 完成済み | その他の法令上の制限 | 景観法 |
| 取引態様/引渡時期 | 仲介/即時 | 建築確認番号 | 第24UDI1W建05653号 |
| 物件番号 | 95443792 | 取引条件の有効期限 | 2025年11月21日 |
| 設備条件 |
|
||
| 備考 | 都市ガス・本下水 | ||
| 取扱会社 |
|
||
| QRコード |
このQRコードを読み取ることで、スマホでも物件情報を確認できます。 |
||
※地図上に表示される物件の位置は付近住所に所在することを表すものであり、実際の物件所在地とは異なる場合がございます。
ふじみ野市以外の市区町村から探す
ふじみ野市にある駅から探す