00件
最近見た物件
00件
検討リスト
ふじみ野市の不動産|株式会社東武住販 > レクセル南大塚
JCBギフト券1万円分プレゼント!当社より本物件をご購入の方に!その他のサービスについては下記『担当者(スタッフ)のコメント』をご確認ください。











(※元利均等方式 金利5.00%まで ※返済年数5~50年まで入力できます)
(※ボーナスは年2回で計算しています。1000万円まで入力できます)
(※物件購入時、その他諸費用が発生する場合がございます)
| 所在地 | 埼玉県川越市大字大袋新田 | ||
|---|---|---|---|
| 交通 | |||
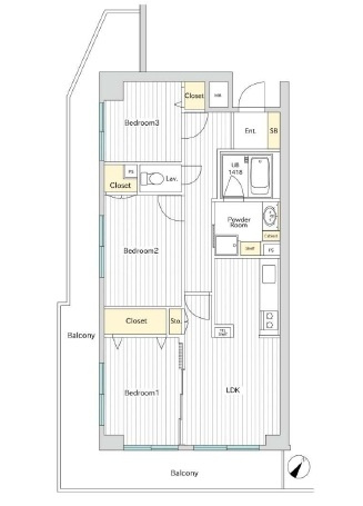
| 間取り/詳細 |
3LDK LDK 1室/洋室 3室 |
||
| 専有面積/バルコニー面積 | 68.30㎡/6.72㎡ | ルーフバルコニー面積/テラス面積/専用庭面積 | -/-/- |
| 価格 | 1,790万円 | ||
| 管理費 | 10,930円 | ||
| 修繕積立金 | 15,000円 | 修繕積立基金 | - |
| 権利金 | - | 駐車場/月額料金 | 空無/7,000円 |
| 土地の敷金/保証金 | -/- | 借地料/借地期間 | -/- |
| 土地権利 | 所有権 | 国土法届出要否 | 不要 |
| 用途地域 | 準工業 | 地勢 | - |
| 種別/構造 | 中古マンション/鉄筋コンクリート | 向き | 南東 |
| 築年月(築年数) | 1996年 2月 (築30年) | ||
| 所在階/階建 | 2階/6階建 | 棟総戸数/販売戸数 | 38戸/1戸 |
| 管理組合有無 | 有 | 管理形態 | 管理会社に全部委託 |
| 管理員の勤務形態 | 巡回 | 管理会社 | 合人社計画研究所 |
| 取引態様 | 仲介 | 現況 | 空家 |
| 引渡し | 即時 | 建築確認番号 | - |
| 物件番号 | 95614880 | 取引条件の有効期限 | 2026年02月24日 |
| リフォーム |
2024年6月 キッチン 浴室 トイレ 壁 床 フローリング・クロス全室貼替 建具交換 キッチン交換 ユニットバス交換(浴室乾燥機付) 洗面台交換 トイレ交換 照明・分電盤交換 下駄箱交換 窓枠交換 給湯器交換 ハウスクリーニング 等 |
||
| リノベーション |
2024年6月 フローリング・クロス全室貼替 建具交換 キッチン交換 ユニットバス交換(浴室乾燥機付) 洗面台交換 トイレ交換 照明・分電盤交換 下駄箱交換 窓枠交換 給湯器交換 ハウスクリーニング 等 |
||
| 設備条件 |
|
||
| 備考 |
2024年6月リノベーション フローリング・クロス全室貼替 建具交換 キッチン交換 ユニットバス交換(浴室乾燥機付) 洗面台交換 トイレ交換 照明・分電盤交換 下駄箱交換 窓枠交換 給湯器交換 ハウスクリーニング 等 |
||
| 取扱会社 |
|
||
| QRコード |
このQRコードを読み取ることで、スマホでも物件情報を確認できます。 |
||
※地図上に表示される物件の位置は付近住所に所在することを表すものであり、実際の物件所在地とは異なる場合がございます。
レクセル南大塚に関するこだわり条件から探す
川越市の町名から探す