00件
最近見た物件
00件
検討リスト
ふじみ野市の不動産|株式会社東武住販 > アステールふじみ野アバンシー
JCBギフト券1万円分プレゼント!当社より本物件をご購入の方に!その他のサービスについては下記『担当者(スタッフ)のコメント』をご確認ください。











(※元利均等方式 金利5.00%まで ※返済年数5~50年まで入力できます)
(※ボーナスは年2回で計算しています。1000万円まで入力できます)
(※物件購入時、その他諸費用が発生する場合がございます)
| 所在地 | 埼玉県ふじみ野市大井2丁目 | ||
|---|---|---|---|
| 交通 | |||
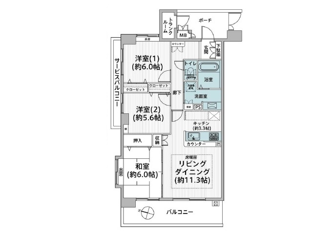
| 間取り/詳細 |
3LDK LDK 14.6帖 1室/和室 6.0帖 1室/洋室 5.6帖 1室/洋室 6.0帖 1室 |
||
| 専有面積/バルコニー面積 | 76.02㎡/16.44㎡ | ルーフバルコニー面積/テラス面積/専用庭面積 | -/-/- |
| 価格 | 3,390万円 | ||
| 管理費 | 13,886円 | ||
| 修繕積立金 | 15,229円 | 修繕積立基金 | - |
| 権利金 | - | 駐車場/月額料金 | 空有(2台)/8,000円 空き状況要確認 |
| 土地の敷金/保証金 | -/- | 借地料/借地期間 | -/- |
| 土地権利 | 所有権 | 国土法届出要否 | 不要 |
| 用途地域 | 第一種住居 | 地勢 | - |
| 種別/構造 | 中古マンション/鉄筋コンクリート | 向き | 南西 |
| 築年月(築年数) | 2003年 3月 (築22年) | ||
| 所在階/階建 | 3階/5階建 | 棟総戸数/販売戸数 | 37戸/1戸 |
| 管理組合有無 | - | 管理形態 | 管理会社に全部委託 |
| 管理員の勤務形態 | 日勤 | 管理会社 | 近藤リフレサービス |
| 取引態様 | 仲介 | 現況 | 空家 |
| 引渡し | 即時 | 建築確認番号 | - |
| 物件番号 | 96143330 | 取引条件の有効期限 | 2025年11月21日 |
| リフォーム |
2025年3月 キッチン 浴室 トイレ 壁 床 全室 システムキッチン交換 ユニットバス交換 洗面化粧台交換 トイレ交換 ナオステックフロア上張 巾木交換 クロス貼替 CF貼替 畳表替 インターホン交換 分電盤交換 火災報知器取付 スイッチ・コンセント交換 LED照明設置 ハウスクリーニング 他 |
||
| リノベーション |
2025.03 システムキッチン交換 ユニットバス交換 洗面化粧台交換 トイレ交換 ナオステックフロア上張 巾木交換 クロス貼替 CF貼替 畳表替 インターホン交換 分電盤交換 火災報知器取付 スイッチ・コンセント交換 LED照明設置 ハウスクリーニング 他 |
||
| 設備条件 |
|
||
| 備考 |
内装リフォーム済(2025.03) システムキッチン交換 ユニットバス交換 洗面化粧台交換 トイレ交換 ナオステックフロア上張 巾木交換 クロス貼替 CF貼替 畳表替 インターホン交換 分電盤交換 火災報知器取付 スイッチ・コンセント交換 LED照明設置 ハウスクリーニング 他 ペット可(細則有) エレベーター オートロック 宅配ボックス トランクルーム 床暖房 |
||
| 取扱会社 |
|
||
| QRコード |
このQRコードを読み取ることで、スマホでも物件情報を確認できます。 |
||
※地図上に表示される物件の位置は付近住所に所在することを表すものであり、実際の物件所在地とは異なる場合がございます。
ふじみ野市にある駅から探す